Публичные слушания и общественные обсуждения

Объявление о проведении публичных слушаний по проекту планировки территорий и проекту межевания территорий

28.12.2020

1.        Проект постановления администрации Усть-Абаканского района Республики Хакасия «О назначении публичных слушаний по проекту планировки территории и проекту межевания территории «ЗАО Усть-Абаканское» п. Расцвет Усть-Абаканского района» разработан для ознакомления граждан с проектом планировки территории и проектом межевания территории.

Проект планировки территории и проект межевания территории подготовлен на основании постановления администрации Усть-Абаканского района от 20.01.2020 № 22-п «О подготовке проекта планировки территории и проекта межевания территории».

Проект планировки территории и проект межевания территории выполнены проектной организацией ООО «Землемер-Метео».

 

Информационный материал,

рассматриваемый на публичных слушаниях:

 

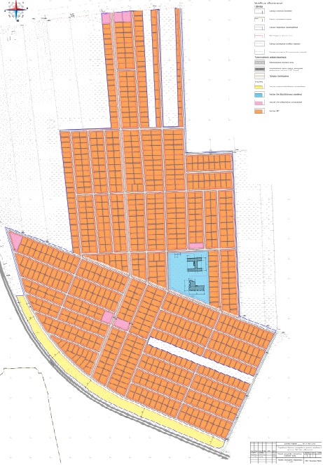
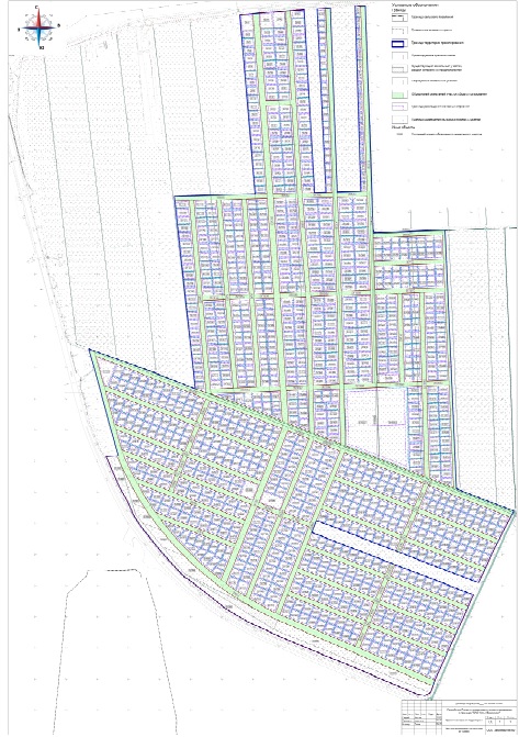
Проект планировки территории и проект межевания территории

«ЗАО Усть-Абаканское» п. Расцвет Усть-Абаканского района»

Проект планировки территории и проект межевания территории.jpg Проект планировки территории и проект межевания территории2.jpg

 

Информация

 о месте и времени открытия экспозиции проекта

и проведения публичных слушаний

С экспозицией проекта можно ознакомиться в администрации Расцветовского сельсовета, по адресу: Республика Хакасия, Усть-Абаканский район, п. Расцвет,
ул. Школьная, 4, в рабочие дни с 8.00 до 12.00 часов.

Материалы проекта размещены на официальном сайте администрации Усть-Абаканского района в телекоммуникационной сети «Интернет» по адресу:
ust-abakan.ru.

Публичные слушания пройдут 28 января 2021 года в 15:00 часов по адресу:
п. Расцвет, ул. Школьная, 1В.

Предложения по проекту, рассматриваемому на публичных слушаниях, имеющиеся у юридических и физических лиц, могут быть направлены в отдел архитектуры и градостроительства Управления имущественных отношений администрации Усть-Абаканского района в рабочие дни с 8.00 до 12.00 и с 13.00
до 17.00 по адресу: рп. Усть-Абакан, ул. Гидролизная, 9.

Предложения заинтересованных лиц принимаются на бумажных и электронных носителях до 22.01.2021, в порядке, предусмотренном для обработки почтовой корреспонденции.

 



Оставаясь на нашем сайте, вы принимаете использование сайтом файлов cookies в соответствии с нашей Политикой конфиденциальности.